New townhouse in the north of Spain
Location: Luanco, Asturias
Year: 2022
Architects: isla (Marta Colón de Carvajal, Juan Palencia) with Mori Meana Architecture (Mateo Mori)
Team: Silvia Fernández, Beatriz González, Cristina Gutiérrez, María Gutiérrez, Teresa Meana, Leticia Olalquiaga Cubillo, Vojtech Rada
Status: Completed
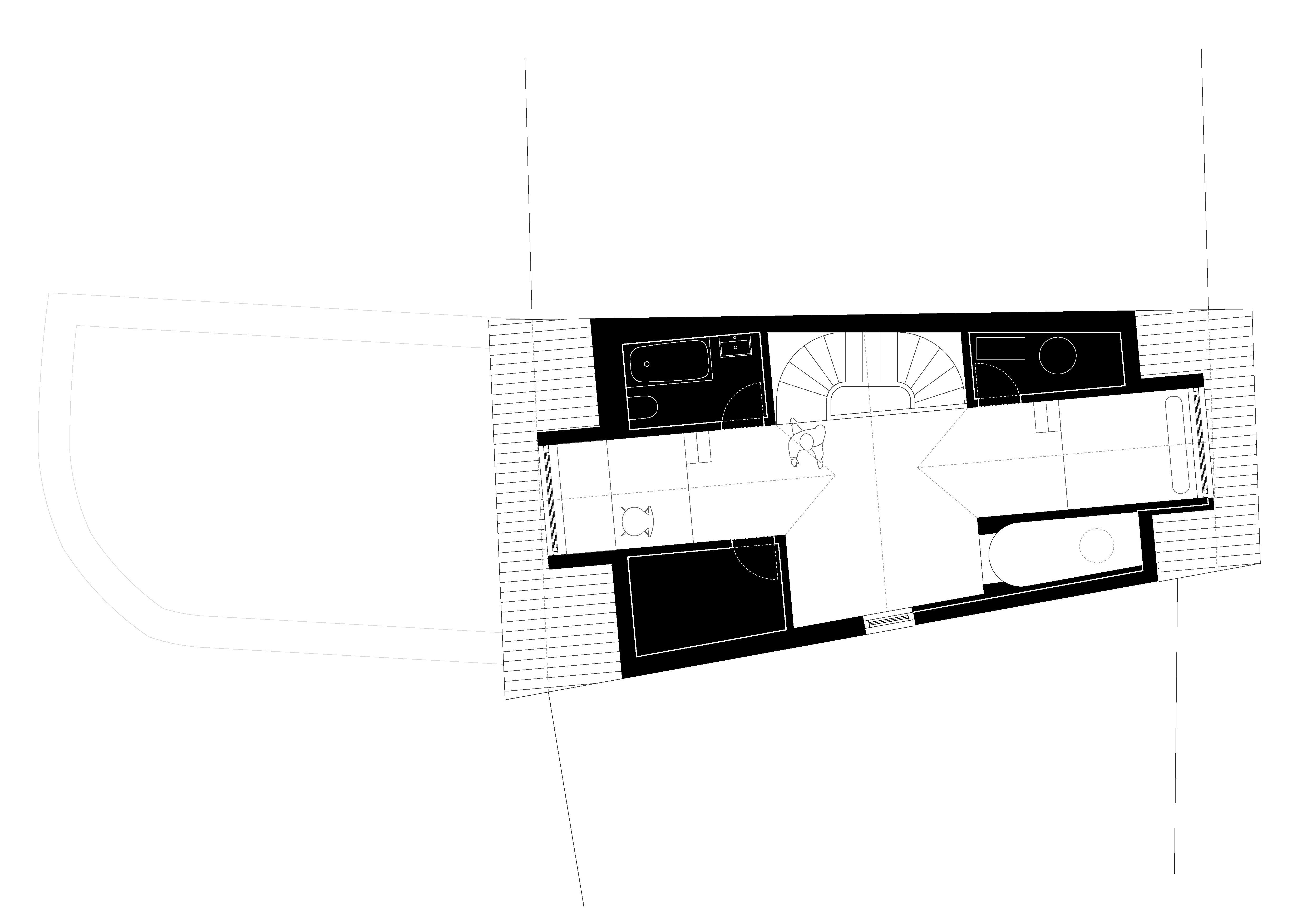
In Luanco, a charming but traditional Asturian fishing village on the Atlantic coast of Spain, a family sought a functional, flexible, and playful house. The project optimizes the spaces on each floor by twisting the staircase to offer the best distribution on each level, while the exterior reinterprets local regulations and traditional elements.

The house from the harbour





The facade opens itself like an advent calendar
Facade detail

The stairs turning from the first to the topfloor



Details on the triple height space

The ventana marinera overlooking the Luanco harbour

Bedroom in the ‘ventana marinera’

The opening

The view

The main facade

The basin
Plans